San Diego, CA 92120
Due to the health concerns created by Coronavirus we are offering personal 1-1 online video walkthough tours where possible.



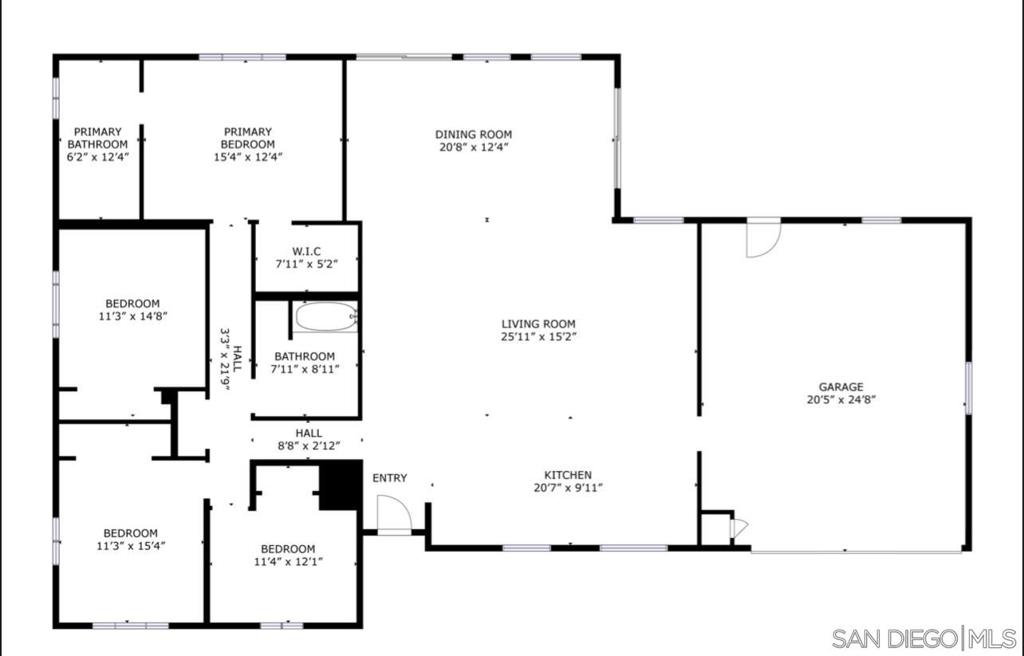
***Professional photos to be uploaded Friday, 10/17*** Perched above the canyon on nearly half an acre, this fully remodeled 4 bedroom, 2 bathroom home delivers an extraordinary blend of design and quality in one of Del Cerro’s most desirable pockets. Taken down to the studs with permits, every inch of this almost 2,000 sq ft home has been meticulously rebuilt with modern craftsmanship and high end finishes throughout. Step inside to an enormous chef’s kitchen featuring quartz counters, custom white oak cabinetry, tiled backsplash, designer lighting, and a spacious island that anchors the open-concept living space. The bathrooms are dressed in timeless marble tile, exuding a luxury-spa feel. Outside, the resort-style pool area has been completely redone, surrounded by travertine decking and sleek cable railing that frame the sweeping canyon views. Below the pool, a flat, usable yard offers endless possibilities for play, entertaining, or an ADU addition. Additional upgrades include a new foundation, owned solar, a new roof (2024), updated plumbing, new windows, new doors, new retaining wall with cable railing, new insulation...too many upgrades to list —no detail was overlooked. A rare, move-in-ready canyon view home that perfectly balances privacy, style, and San Diego indoor-outdoor living.
36 minutes ago | Listing updated with changes from the MLS® | |
3 hours ago | Listing first seen on site |

This information is for your personal, non-commercial use and may not be used for any purpose other than to identify prospective properties you may be interested in purchasing. The display of MLS data is usually deemed reliable but is NOT guaranteed accurate by the MLS. Buyers are responsible for verifying the accuracy of all information and should investigate the data themselves or retain appropriate professionals. Information from sources other than the Listing Agent may have been included in the MLS data. Unless otherwise specified in writing, the Broker/Agent has not and will not verify any information obtained from other sources. The Broker/Agent providing the information contained herein may or may not have been the Listing and/or Selling Agent.
Did you know? You can invite friends and family to your search. They can join your search, rate and discuss listings with you.